Feel free to send a message and we will help you find what you are looking for!
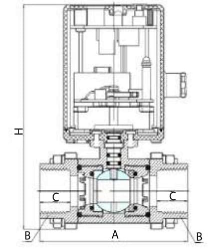
Automatic ball valve for periodic flushing of filters and pipelines. Made of stainless steel for durability and long service life.
Suitable for both cold and hot water. Can be connected to a timer or control unit for automated flushing cycles.
Ideal for sediment, iron removal, and ultrafiltration systems, as well as industrial water treatment setups.

| Width (cm) | Height (cm) | Length (cm) | Weight (kg) |
|---|---|---|---|
| 7 | 10 | 14.7 | 0.8 |
By clicking on the following link, you can view and download the following: